At the heart of campus, Carter Hall is directly across from the ETSU Amphitheatre, D.P. Culp Student Center, and University Commons, in close proximity to a number of academic buildings!

-
Building Info
- 3 Floors
- Houses 134 students
- Double Occupancy Rooms, Private Rooms, andSuites
- *Room Sizes & Amenities Vary
-
Amenities
- Wi-Fi
- Streaming App Access
- Ethernet Jacks (2 per Room)
- Air Conditioning
- Elevator
- Laundry Room on 2nd Floor
- Vending Machines in Main Lobby and Basement
- Kitchens on 1st and 3rd Floors
- Carpeted Floors
-
Living-Learning Communities
-
Furniture & Dimensions
- 2Moveable Loft Beds, Chairs and Desks
- Number of Windows:1-5 per Room
- Window Dimensions:3 Sizes of 28 x 80, 38 x 80 and 40.5 x 80
- Mattress Size: Twin-Long
-
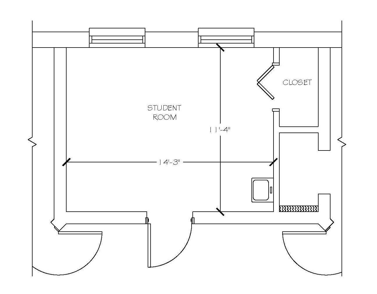
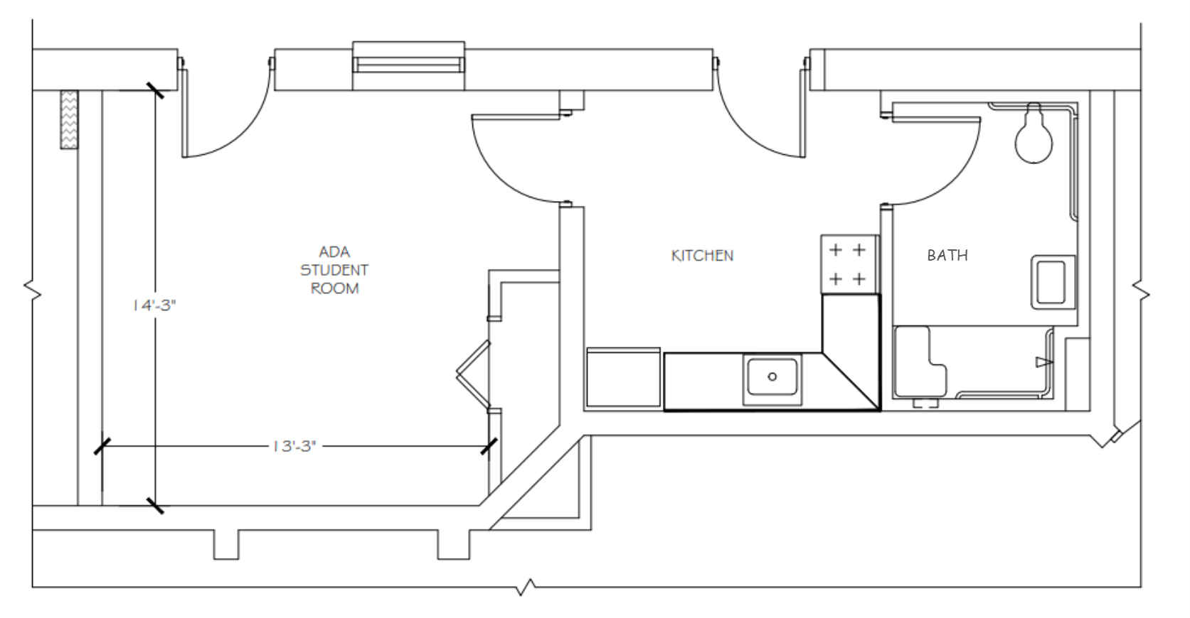
Floor Plans
*Disclaimer: Common Floor Plans for Each Carter Hall Room Type are Featured Below. Actual Size, Dimensions, and Amenities May Vary.
Standard 2-Person Unit, Community Bath
With In-Room Sink: 128, 130, 132, 210, 212, 214, 216, 218, 220, 226, 234, 236, 310, 312, 314, 316, 318, 320, 326, 330, 332, 334, 336, 342
No In-Room Sink: 219, 221, 223, 225

Standard 1-Person Unit, Community Bath
215, 229, 315, 329

Suite Style, Two Units Sharing Middle Bath
119/125, 136/138, 203/209, 204/206, 240/242, 303/309, 319/321, 323/325, 335/341, 340/342

Standard 1-Person Unit, Private Bath
127, 202, 243, 244, 301, 302

Basement Apartment Unit
2, 3, 4, 5

Possible Outlook Issues
Stout Drive Road Closure